Zahájena výstavba
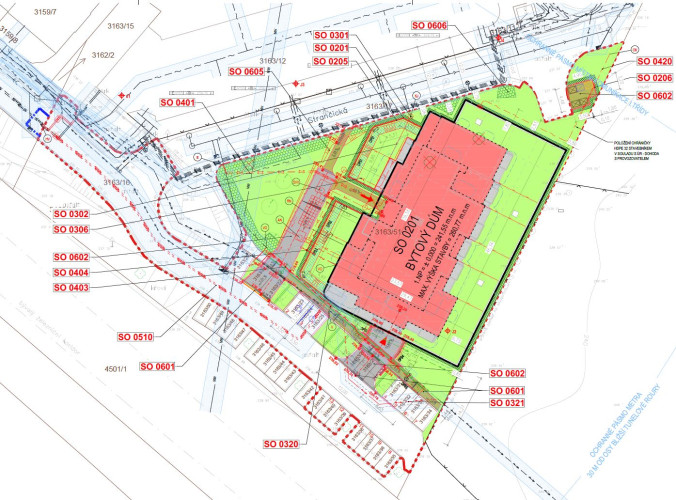
Ekorezidence Strašnice
stavba
120 mil. Kč
realizace
2025
lokalita
Praha - Strašnice
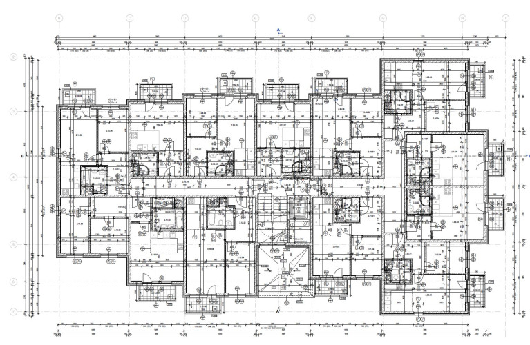
Bytový dům v ulici Strančická o šesti nadzemních podlažích nabízí celkem 64 moderních bytů s dispozicemi od 1+kk po 3+kk, každý disponuje buď balkonem, terasou nebo předzahrádkou. Samozřejmostí je dostatek parkovacích stání, ať už vnitřních či venkovních.
kontaktujte nás
Partneři od prvního nápadu…
Usilujeme o partnerství s investorem. Základ kvalitního projektu je ukryt v diskuzi při hledání souladu a důvěry v náš tým.
601 121 780
info [zavinac] ateliertestudo.cz
DALŠÍ KONTAKTY
