601 121 780 info [zavinac] ateliertestudo.cz

Dokončená výstavba

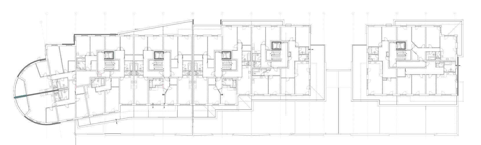
Bytový dům SO-05 Perseus, Ohrazenice

stavba 145 mil. Kč
realizace 2023
lokalita Pardubice - Ohrazenice

Další bytový dům v lokalitě Ohrazenice. Parkování v suterénu, 56 bytových jednotek, součástí komerčních jednotek je i bazén pro batolata. Architektonický výraz vychází z návrhu architekta Červeného. Součástí bytového komplexu je i nově navržená cyklostezka v území. Perseus byl dostavěn v březnu 2023. Doménou tohoto domu je obloukovité čelo budovy, v jehož spodní části je bazén pro kojence a batolata, horní část lemuje rozlehlý privátní prostor nadstandardního bytu. Součástí zázemí bazénu je dětský koutek s občerstvením. Pro dospělé je k dispozici sportovní sál, kde probíhají rozličné sportovní aktivity.

kontaktujte nás

Partneři od prvního nápadu…

Usilujeme o partnerství s investorem. Základ kvalitního projektu je ukryt v diskuzi při hledání souladu a důvěry v náš tým.

601 121 780 info [zavinac] ateliertestudo.cz
DALŠÍ KONTAKTY
tým Atelier Testudo